原分譲地 - 宇部市東須恵 | アドバンス不動産の売買土地物件(土地)

  • 電話
  • 0836-38-8920
  • 営業時間|9:00~18:00
  • 山口県宇部市大字西岐波6157-4

メニュー

売買土地物件詳細

原分譲地

土地

建築条件はありません。お好きなハウスメーカーで建築してくださいね!

原分譲地

原分譲地
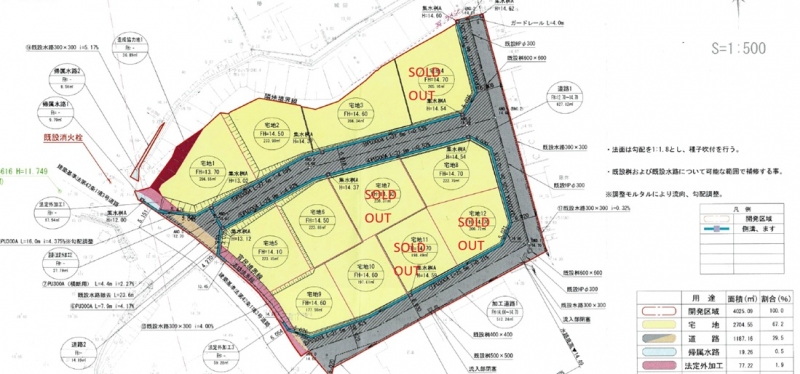
区画図

原分譲地

原分譲地

物件情報
価格 617~926万円
現況 宅地 (引き渡し可能日:即時)
進捗 商談可
取引態様 仲介
所在地 宇部市東須恵
交通  長門長沢駅 
学校区 原小学校、黒石中学校

写真・区画図をクリックすると拡大します

物件の区画図
物件写真

土地情報
土地面積 177.56~266.34㎡、
坪単価
建ぺい率 60%
容積率 200%
地目 宅地
用途地域 中高層住居専用地域(第1種)
地勢 高台
土地権利 所有権
設備など
電気  
ガス  
上水道 公営水道
下水道  
接道  
設備 ・公共下水
その他の設備  
備考・その他 4,7,11,12号地→売却済
8号地→予約

物件の詳細情報についてのご注意
諸事情により掲載内容と現況が相違することがあります。
その場合は現況が優先されますので予めご了承ください。